LZ Architects

     
ILYA LENDA - ELLA ZILBERMAN ARCHITECTS      

      e-mail
         
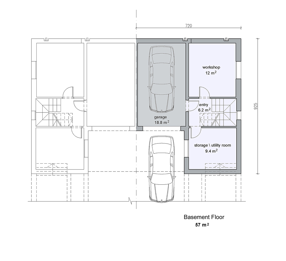
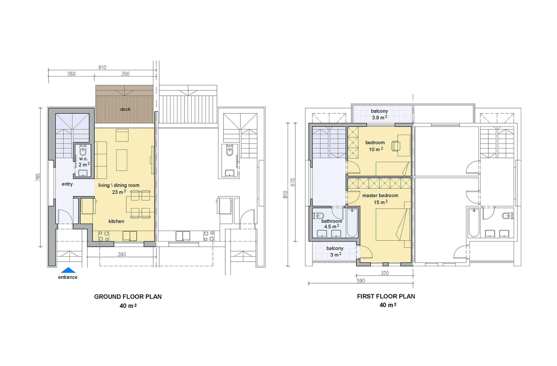
Row House 110 m2      

These row houses were inspired by the Bulgarian resort architecture of the 70's with its very modest expressive means, characteristic combination of roughly plastered surfaces with wooden elements and a deep understanding of scale and place. Unfortunately, modern resort architecture has largely lost these traditions. Here we have tried to follow the old-fashioned principles.

 
     
Single Family House 96 m2    

Winter

Summer Eve

    re-rendered 2025
Single Family House 195 m2    
           
Twin House 80 m2     re-rendered 2025

Bird's Eye Views

Street Views

 

   
Twin House 178 m2       re-rendered 2025
Floor Plans
           

Site Plan and City Location

   
           
           
 
lenda-zilberman architects © 2026
home | e-mail
 
 Kambanite Housing Estate
   
Land Area: 75,000 m2
Built-Up Area: 95,000 m2
Location: Kambanite, Sofia
Phase: Concept Design (unfinished)
Designed for: Atlantis Group
Architect: Ilya Lenda
Year: 2008-2014

Project Overview
This project represents a comprehensive volumetric and stylistic study for a low-density residential masterplan. Rooted in critical regionalism, the design establishes a contemporary dialogue with traditional Bulgarian rural typologies, creating a cohesive community at the urban fringe.

Site and Context
Strategically situated within the city’s southern periphery, the site functions as a transitional threshold between the existing urban fabric and the protected natural landscape of the Vitosha Mountain National Park. The masterplan responds directly to this ecotone, leveraging the topography and surrounding vistas to anchor the development within its unique genius loci.

Typology and Morphology
To cultivate a diverse and dynamic neighbourhood grain, the masterplan integrates a varied typological matrix. The programmatic distribution includes:

  • Terraced/Row Housing: Defining street edges and fostering community density.
  • Semi-Detached (Twin) Dwellings: Balancing shared infrastructure with private amenity spaces.
  • Detached Single-Family Villas: Providing pavilion-like interventions that blend seamlessly with the bordering natural reserve.

Architectural Language
The architectural expression is heavily informed by the phenomenological qualities of 1970s Bulgarian resort modernism—a period characterized by tectonic modesty and an acute sensitivity to human scale. Recognizing these often-overlooked vernacular methodologies, the design serves as a contemporary homage to these enduring principles.
The proposed material palette is deliberately restrained, relying on the tactile juxtaposition of roughly textured render against warm, articulated timber elements. This approach not only echoes the historical vernacular but also ensures the built forms weather gracefully, embedding themselves further into the mountainous context over time.

Project Legacy and Role
While our studio's involvement concluded at the schematic design phase, this conceptual framework acted as a critical catalyst for the client. By rigorously defining the site’s massing strategy, spatial hierarchy, and architectural vernacular, our initial vision successfully laid the groundwork for the project. It provided a robust stylistic and volumetric masterplan that was subsequently realized by a localized executive architecture firm specializing in the region's delivery phases.

Implemented project: Kambanite Residential Park
   
Airport Mall
Family House
Modular Apartments House
  More in Bulgaria