LZ Architects

     
ILYA LENDA - ELLA ZILBERMAN ARCHITECTS      

      e-mail
         
Nahlat Yehuda Synagogue    
General Appearance (re-rendered 2026)    
       
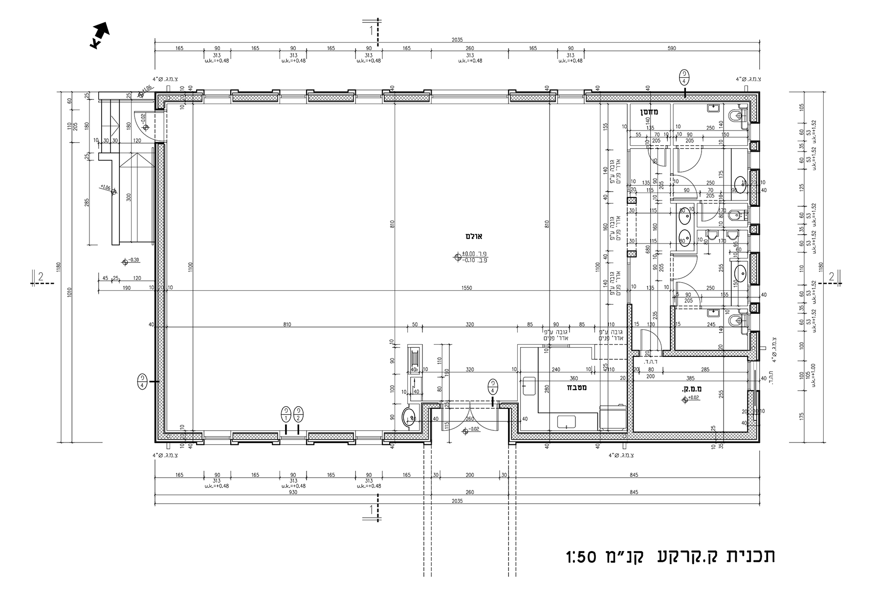
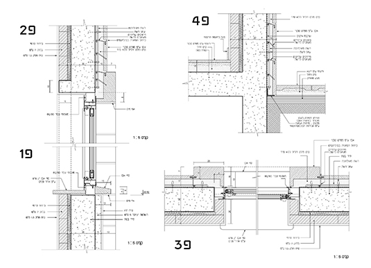
        Construction Drawings
       
Project Realization and Postscript
Ultimately, the realized structure diverged from this original modernist vision. The synagogue was subsequently constructed in a highly traditional architectural style by another firm. This occurred following our studio's principled decision to withdraw our participation and cease architectural operations within these territories.
     
           
           
    lenda-zilberman architects © 2026    
    home | e-mail    
   
Location: Mishor Adumim, Jerusalem District
Phase: Completed
Designed for: Local Comunity
Architect: Ilya Lenda
Year: 2009
   

Project Context
and Conceptual Framework
Situated in Maale Adumim, a satellite city adjacent to Jerusalem, this proposed synagogue was conceived as a deliberate departure from the expected regional aesthetic. Eschewing vernacular pastiche and literal interpretations of "desert architecture," the design language is firmly rooted in classical modernism. The architectural intent was to demonstrate that pure, modernist geometries and clean lines establish a stark yet deeply harmonious dialogue with the austere, monumental beauty of the surrounding arid landscape.

Topographical Integration
and Spatial Sequencing
The site’s challenging topography—dropping approximately one full story below the primary street datum—served as a generative driver for the building's spatial organization. The programmatic circulation is stratified to exploit this natural grade change, resulting in a dual-level entry sequence:

  • Lower Datum (Main Sanctuary): The primary entrance is carved into the recessed lower level, leading congregants directly into the main prayer hall. This creates a grounded, intimate approach to the core spiritual space.
  • Upper Datum
  • (Gallery and Administration): An elevated pedestrian bridge spans from the upper street level directly to the second floor. This creates a dramatic, suspended threshold that provides dedicated access to the administrative offices and the Ezrat Nashim (women’s prayer gallery).

Threshold Design
and Dedication
Anchoring the lower-level entrance plaza, a monolithic triangular stone element was designed to serve as both a spatial marker and a dedicatory monument. This geometric feature was intended to formally integrate the names of the project's benefactors into the architectural threshold of the building.