| Prushim
Synagogue, Giv'at Shaul, Jerusalem |
|
|
|
|
 |
| |
|

Amram
Gaon str. Views
|
 |
 |
| |
|
| Drawings |
|
|
|
|

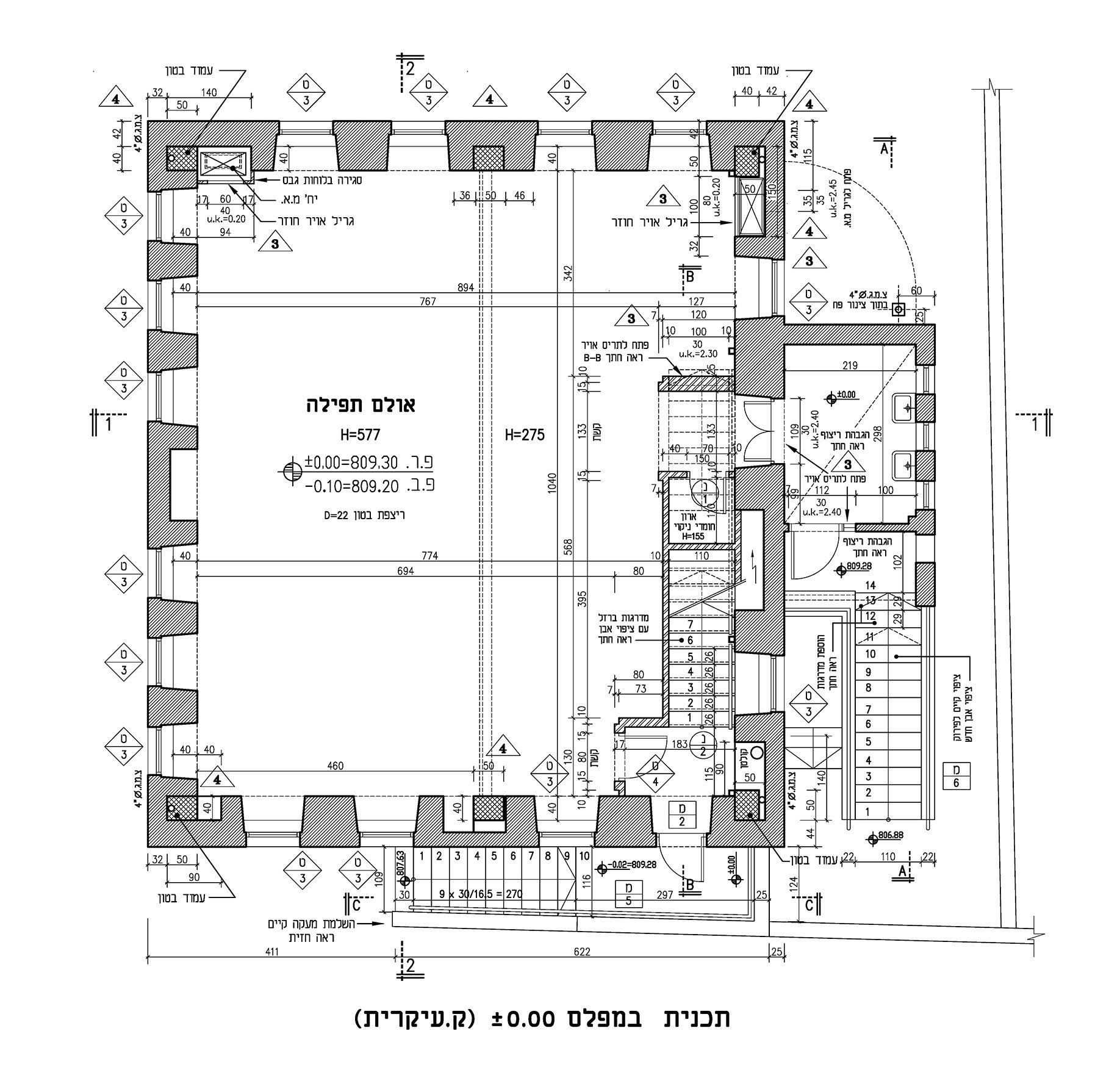
Floor
Plan
|

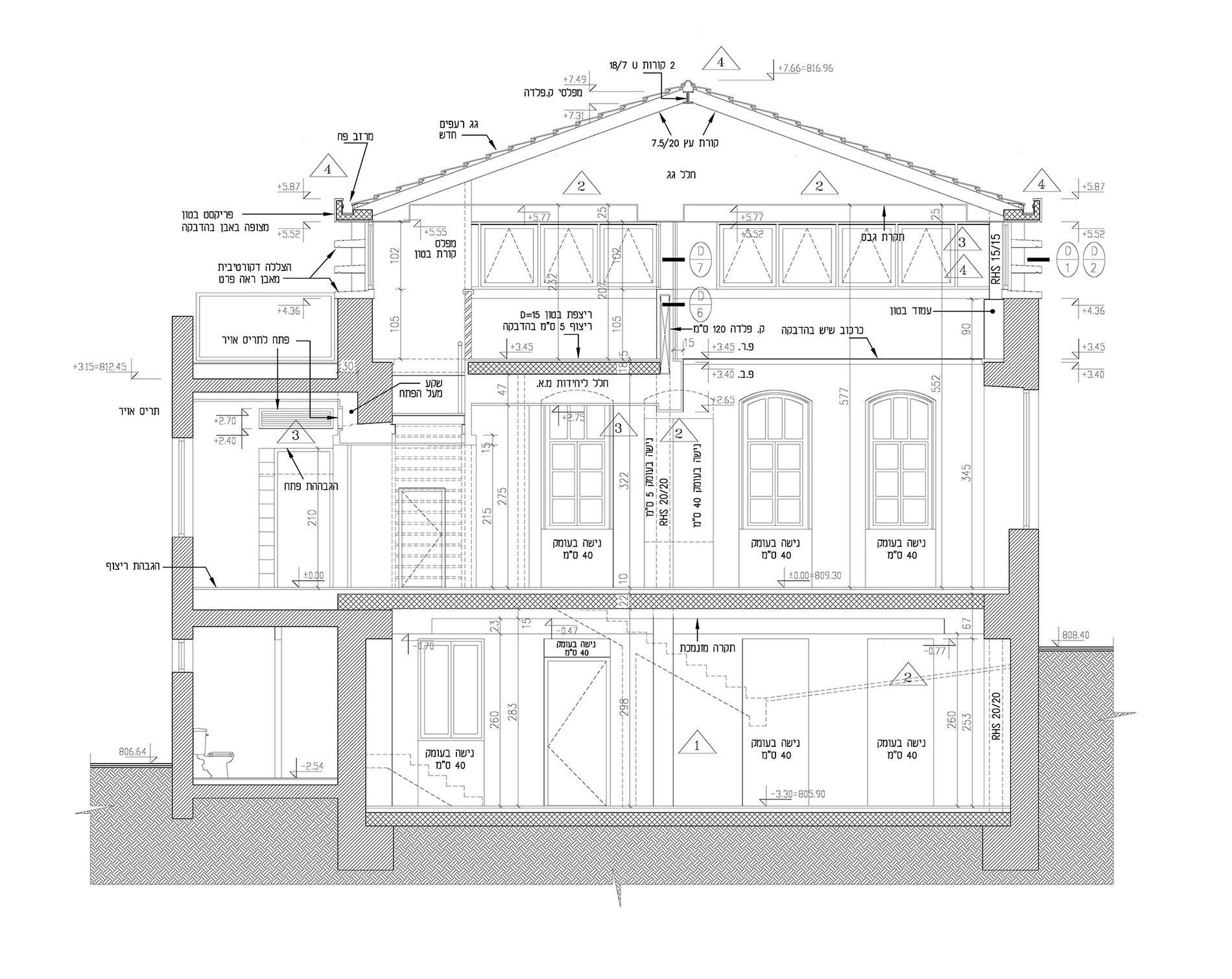
Section
|

North
Facade
|

East
Facade
|

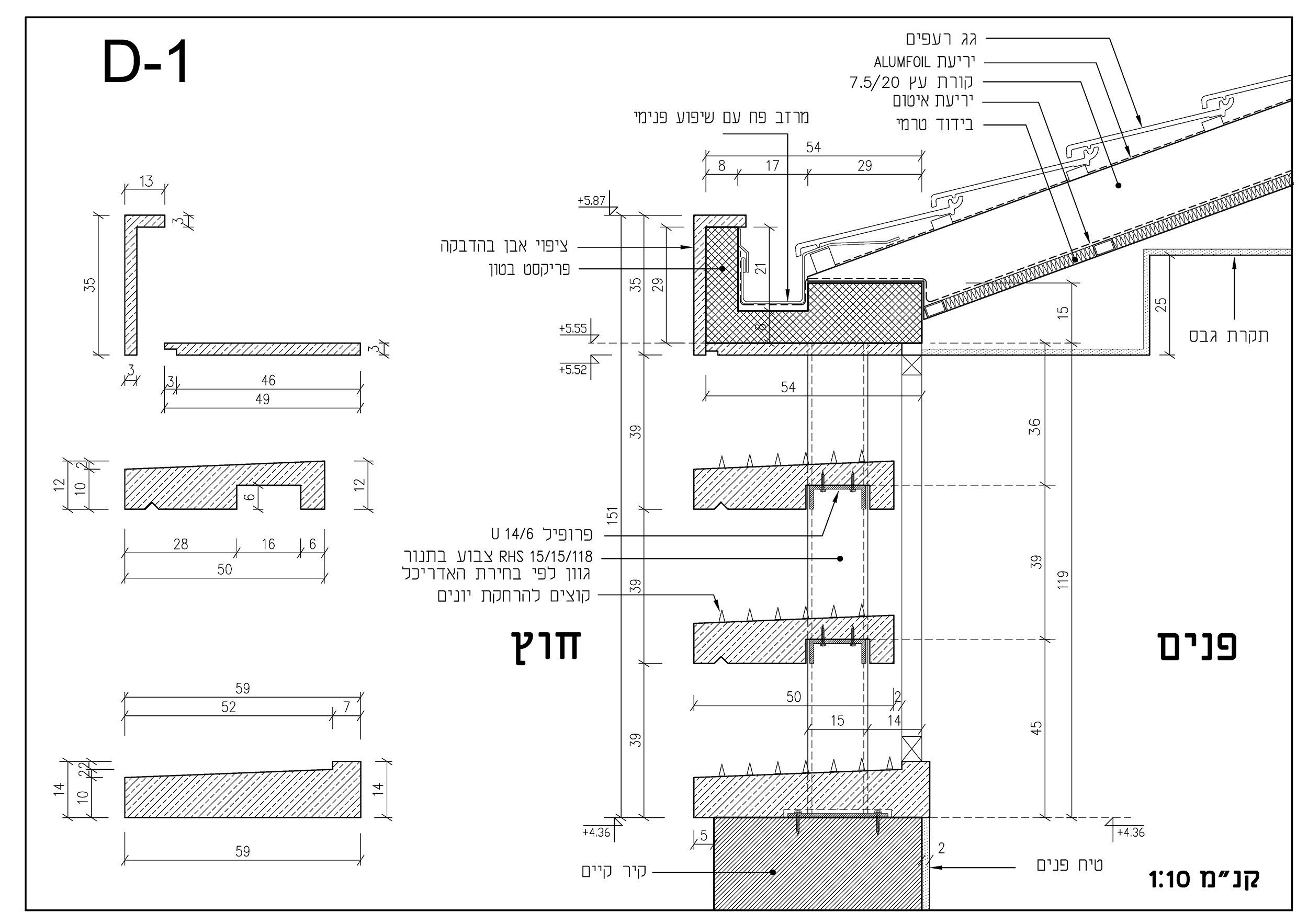
Details
|
|
 |
 |
 |
|
|
|
| |
City Location |
|
|
|
|
| |
|
|
|
|
|
| |
|
|
|
|
|
| |
| |
| lenda-zilberman architects © 2026 |
| home | e-mail |
|
|
| |
| Area: |
240 m2 |
| Location: |
Amram Gaon str.,
Jerusalem |
| Phase: |
Completed |
| Client: |
Local Community |
| Architect: |
Ilya Lenda |
| Ella Zilberman |
| Eli Aizenbach |
| Year: |
2010 |
| |
|
|
Project:
Rehabilitation
and extension of 1905-y synagogue building in Giv'at
Shaul neighborhood of Jerusalem. Besides major
renovation works, the project adds Ezrat Nashim (women
pray gallery) elevating the roof, within the same
volume of the existing building.
Considering
the closeness of surrounding residential buildings,
the gallery privacy issue is solved by enclosing it
into a structure of horizontal shading stone-curved
elements on UNP construction.
|
| |
|
 |
| |
historic
building |
| |
|
| |
|
| |
|
 |
| Zichron
Moshe Synagogue, Zurich |
| |
|
|